Slovenská akadémia vied – Budova predsedníctva

Navrhovaná architektúra reaguje na viacero aspektov, ktoré ju prirodzene formovali, ako je napríklad nastavená regulácia, fluidný parter reagujúci na okolitý verejný priestor, integrácia zelene, práca s prirodzeným ochladzovaním, vetraním a tienením kancelárií, alebo funkčno-prevádzková schéma, ktorá sa na priečelí odzrkadlila vo forme blokov.

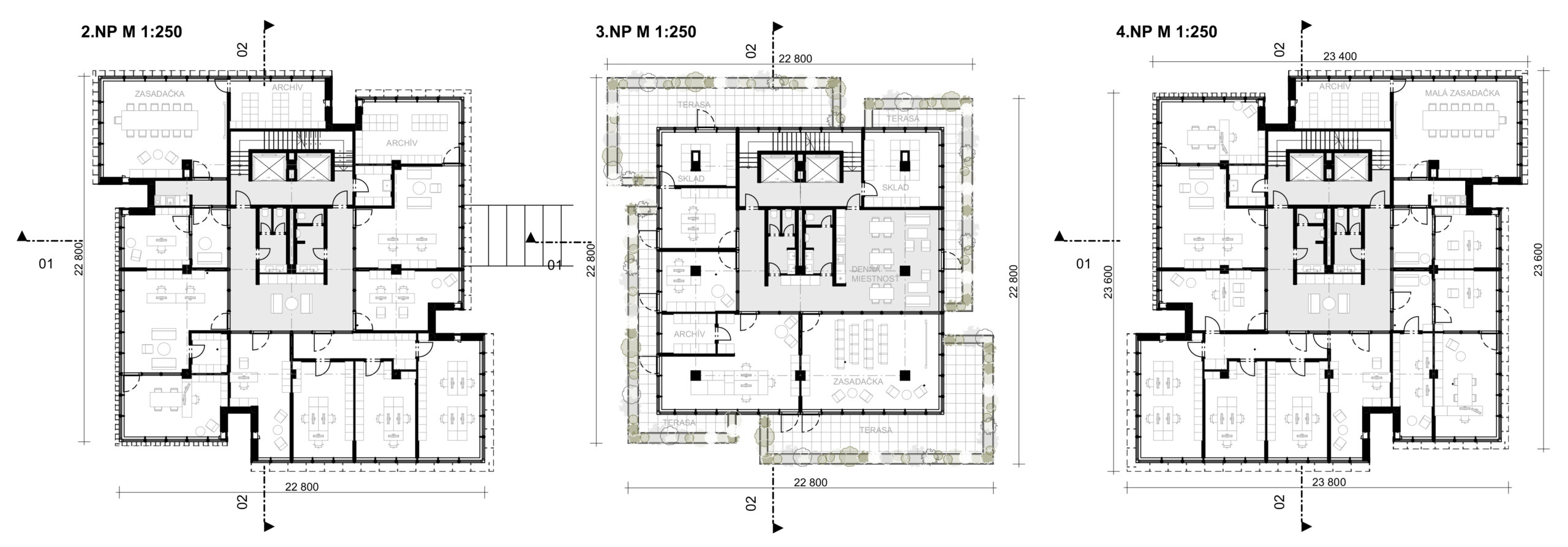
V prvom kroku bolo potrebné definovať zeleň, ktorú je potrebné odstrániť z dôvodu novej zastavanej plochy. Ostatná existujúca zeleň ostáva zachovaná v maximálnej možnej miere a zakomponovaná do verejného priestoru. Priečelie partera je organické a reaguje na okolitý navrhovaný fluidný verejný priestor, zároveň má reprezentatívny charakter. Výška a objem stavby v plnej miere rešpektuje  nastavené regulatívy. Na troch podlažiach boli navrhnuté balkóny, ktoré prechádzajú po celom obvode – vodorovné „hmotové pauzy“. Niektoré z nich sú prístupné zo spoločných priestorov (ako je napríklad denná miestnosť). Samotné oddiely boli zadefinované aj hmotovo vďaka vertikálnym „hmotovým pauzám“, ktoré slúžia zároveň na prirodzené vetranie kancelárií a ochladzovanie priečelia v letných mesiacoch. Vysunutím niektorých blokov boli dosiahnuté priaznivejšie tieniace faktory jednotlivých kancelárií a boli vytvorené širšie pobytové terasy. Vodorovné a aj vertikalné pauzy boli doplnené o polo-intenzívnu zeleň, ktorá má za úlohu zlepšiť mikroklímu v okolí budovy. Na streche objektu sú doplnené stromy, ktorých počet korešponduje s počtom vyrúbaných stromov v prvom kroku. Na priečelí kancelárií, ktoré nie sú tienené vykonzolovaním blokov, sú osadené tieniaci prvky v podobe bielych hliníkových lamiel, ktorých hĺbka sa mení v závislosti od rozteče, čím dostávajú samotné bloky jedinečný charakter aj keď majú totožné proporcie. Objekt je navrhnutý v bielom prevedení – biela farba prirodzene odráža slnečné lúče v letných mesiacoch a tým pomáha objektu regulovať a čiastočne eliminovať prehrievanie.

Z prevádzkového hľadiska je na najvyššom poschodí umiestnené vedenie s predsedom SAV (9.NP). Vedúci SAV s niektorými odbormi majú navrhnuté sídlo na 8.NP a 7.NP. Podpredsedovia SAV sa nachádzajú jednotlivo na rôznych podlažiach. Členovia predstavenstva majú vyčlenené celé podlažie pre svoje účely (6.NP). Ostatné referáty majú svoje sídla koncentrované v rámci jedného podlažia (prípadne max. dvoch nad sebou). Na prízemí sa nachádza recepcia priamo prístupná z navrhovaného námestia a prenajímateľný priestor (160 m2) rovnako priamo prístupný pre pešieho (z parku Helix). Na prízemí je navrhovaná aj podateľňa, ktorá je prístupná „suchou nohou“ aj od budovy ÚSTARCH vďaka prepojovacej chodbe.

Zastavaná plocha na úrovni 1.NP je 470 m2. Hrubá podlažná plocha všetkých podlaží je 4 015 m2.