Apartmán Zelený sen, Tále

Zadaním od investora bolo navrhnúť apartmán do existujúceho rekreačného objektu, ktorý bude slúžiť na prenájom a zároveň aj pre rodinu investora. Apartmán sa nachádza v rekreačnom dome na Táloch v objekte „Evergreen“ (Zelený sen). Požiadavkami investora bolo navrhnúť čo najviac lôžok (navrhnutých 8), aby bolo z materiálov a prevedenia zrejmé, že je apartmán vsadený do horského prostredia a aby bolo v apartmáne dostatok úložného priestoru.

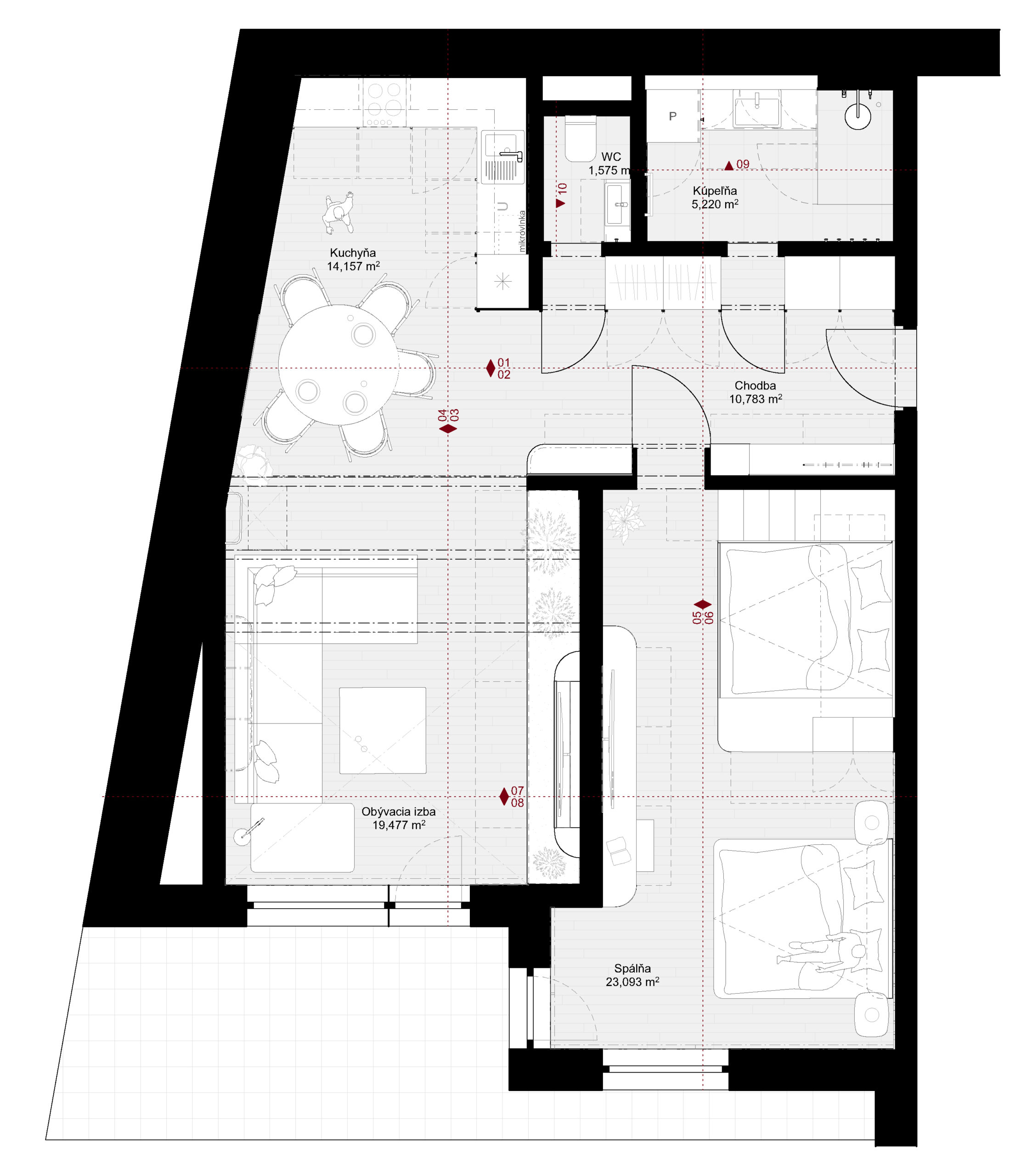
Dispozičné riešenie

Dispozičné riešenie ostáva bez zmeny. Apartmán pozostáva z chodby, hlavnej spálne, kúpeľne, WC a spoločenskej zóny (kuchyňa, jedáleň, obývacia izba). Chodba nie je od spoločenskej zóny konštrukčne oddelená, opticky je s ňou prepojená. Na osi chodby je umiestnený jedálenský stôl, ktorý sa stáva ústredným motívom spoločenskej zóny. Kuchynská zostava je otvorená priamo ku stolu. Sofa so zostavou pre TV sa nachádza za jedálenským stolom v časti s vyššou svetlou výškou, v priamom kontakte s oknom. Spálňa má navrhnuté dve dominantné časti na prespatie. Manželská zóna s manželskou posteľou a detská zóna, ktorá obsahuje dvojlôžkovú posteľ pre deti, kde je nad posteľou navrhnuté ďalšie lôžko. Detskú zónu na prespatie je možné oddeliť závesom od zvyšku miestnosti. Dispozičné riešenie WC a kúpeľne bolo už zrealizované v rámci hrubej stavby.

V apartmáne je navrhnutý nábytok, ktorý umožňuje prespatie až 8 osôb. Dve na manželskej ústrednej posteli, dve na posteli v rohu spálne, nad ktorou je ďalšie miesto na prespatie. Vďaka platforme nad obývacou časťou je možné prespať ďalšie dve osoby. Jedna osoba sa môže vyspať na sofe. V prípade rozťahovacej sofy by v apartmáne mohlo prespať až 9 osôb.

V rámci projektu nebolo potrebné navrhnúť stavebné, alebo konštrukčné úpravy. Jedinou stavebnou úpravou, ktorá môže nastať je z dôvodu návrhu platformy, nad obývacou izbou, ktorá bude kotvená do nosnej konštrukcie cez oceľové profily v tvare „I“.

Nábytok

Z oboch strán chodby, v pozdĺžnom smere sú navrhnuté nábytkové zostavy, v ktorých sú priamo zapracované dvere. Cez integrované dvere v nábytkovej zostave sa prechádza do spálne, WC a kúpeľne. Nábytkové zostavy prechádzajú spoza roh do ďalších nábytkových zostáv – kuchynskej a obývačkovej. Na jeden strane nábytkovej zostavy v chodbe je navrhnutý šatník a na druhej poličky na odloženie menších vecí a obuvi. V rámci tejto zostavy je integrovaná lavička slúžiaca na obutie a vyzutie obuvi. Nábytková zostava prechádza do obývacej časti cez mierny oblúk. Nábytok tu pozostáva zo spodných šuflíkov, nad ktorými sú integrované kvetináče, v ktorých by mali rásť regionálne dreviny (menšie ihličnany) ako je napríklad Borievka (Juniperus communis, Juniperus chinensis), alebo Araukária vznešená (Araucaria heterophylla). Zostava pre TV je nad kvetináčom hmotovo odsadená so zaoblenými rohmi. TV je do nábytku vsunutá a je možné ju skryť za výsuvné dvierka. Nad TV sú navrhnuté výklopne skrinky. Oproti TV je umiestnená sofa v tvare “U“ s menšou poličkou na stene. Vedľa sofy je navrhnutý rebrík, cez ktorý bude prístupná platforma. Kuchynská zostava v pôdorysnom tvare „L“ nadväzuje cez roh na šatník v chodbe. Kuchyňa pozostáva z dvoch homogénnych vodorovných častí. Spodné skrinky a vrchné skrinky, ktoré sú z jednej strany vertikálne uzatvorené vstavanou chladničkou. V spálni sú vymedzené dve zóny na spánok. Voľne stojaca manželská posteľ s nočnými kovovými stolíkmi a poličkou nad posteľou. Detská zóna ako väčšia nábytková zostava, ktorá je od manželskej oddelená vysokou skriňou a závesom. V spodnej časti pod vysokou skriňou je navrhnutý šuflík. Z bočnej strany postele sú navrhnuté schody smerujúce k lôžku nad posteľou. Pod schodmi sú integrované poličky, zároveň slúžiace ako nočný stolík z bočnej strany postele. Podobná integrácia nočného stolíka je aj vo vysokej skrini od strany lôžka, ktorá je na vyššej úrovni. Oproti zónam na spánok je navrhnutý líniová skrinka so šuflíkmi, nad ktorou bude umiestnená TV a ktorá bude zároveň slúžiť ako stolík na prácu, prípadne ako „beauty“ stolík. Daná skrinka ako aj poličky v zelenom prevedení majú na rohoch menšie zaoblenia, aby pôsobili v priestore mäkšie.

Materiál

Drevené podlahy, dlažby a obklady boli zrealizované v hrubej stavby a nie sú súčasťou predmetného projektu interiéru. Dominantným navrhovaným materiálom v celom interiéri je dubová dyha v naturálnom prevedení. Je aplikovaná takmer na všetkých vstavaných nábytkoch. V šatníkovej a kuchynskej zostave budú dvierka lemovať lamielky, ktoré opticky vymedzia danú časť, ktorá je určená na otváranie. Akcentujúcim farbou je zelená RAL 6011, ktorá je aplikovaná:

  • Polička nad manželskou posteľou
  • Polička nad sofou
  • Poličky integrované do vysokej skrini pri lavičke
  • Skrinka pod TV v spálni
  • Poličky na rožnom priestore,
  • Obvodová konštrukcia na prichytenie jutovej siete na platforme a vedľa lôžka na druhej úrovni poschodovej postele
  • Oceľová konštrukcia nesúca platformu nad obývacou izbou

Kotvenie zelených poličiek má špeciálny detail v podobe ohýbaných kovových rúrok, ktoré  budú nosnou časťou poličky, na ktoré budú položené nábytkárske dosky. Rúrky budú súčasťou konštrukcie pre jutové siete, ktoré sa do nich po obvode zakotvia a takýmto spôsobom budú tvoriť zábranu proti prepadnutiu. Ďalším akcentujúcim materiálom bude zelená kamenná doska použitá ako pracovná doska a zástena v kuchyni. Posledným aplikovaným materiálom je tapeta na zadnej stene za sofou, ktorá ba mala byť striedma (béžová, sivá, šedá), farebne utlmená, s látkovou textúrou.