Jazdecká škola „ŠTIFT“ JV krídlo: kancelárie, ubytovanie, Senec

Autori: Karin Indrišková, Eliška Magulová, Ema Ruhigová, Roman Ruhig

Dátum: január 2025

Miesto: Senec, Tehelná ul.

Urbanistické riešenie

Hlavnou ideou urbanistického riešenia bolo akceptovanie pôvodnej urbánnej štruktúry pamiatky. Prístavby, alebo nadstavby v projekte nie sú uvažované. Pôvodné malé drobné objekty, ktoré boli časom k objektu dostavané budú odstránené. K uchovaniu logiky objektu je obnova navrhovaná tak, aby bola zachovaná poloha existujúceho vstupu. Vstup je priamo napojený na nádvorie. K existujúceho objektu bude dostavaná prístavba v pôvodnom otlačku zrúteného krídla, avšak iba po uličnú čiaru, ktorá je zadefinovaná novou výstavbou rodinných domov v susedstve. Hlavný vstup prístavby bude riešený od strany nádvoria. Bočný vstup slúžiaci pre majiteľov sa bude nachádzať na opačnej strane, od pozemku, ktorý je v ich vlastníctve. Príjazd na pozemok je existujúci. Plocha na parkovanie je navrhnuté pred prístavbou priamo napojená na existujúcu komunikáciu.

Architektonické a výtvarné riešenie

Obnova pôvodného krídla

Hlavným zámerom obnovy predmetnej časti pôvodného krídla je návrat k architektonickým hodnotám, kedy bola pamiatka postavená, t.j. za Márie Terézie v 18. stor. Hmotová kompozícia stavby vychádza z pamiatkového zámeru, na základe ktorého pri návrhu nedošlo k hmotovým zmenám pamiatky. Okenné a dverné otvory sa nezachovali a budú musieť byť nahradené novými oknami, ktorých výraz a proporcie budú vychádzať z architektonicko-historického výskumu spracovaného pre severné krídlo tej istej pamiatky. Niektoré šambrány okolo okien, vlysy a rímsy pri streche sa zachovali a vďaka ich zameraniu môžeme odčítať ich rozmery a proporcie a rekonštruovať ich do pôvodného stavu. Z pohľadu novej funkcie, ktorou je krátkodobé ubytovanie sú okenné otvory v prijateľných dimenziách a nie je potrebné ich zväčšovať. Iba v miestach, kde boli dodatočne zamurované. Ich pôvodné šambrány budú obnovené. Celá fasáda a strecha pamiatky bude farebne kopírovať svoj pôvodný stav – biela omietka  a červená keramická krytina.

Prístavba v novotvare

Prístavba, v ktorej sa budú nachádzať kancelárske priestory bude hmotovo (v priečnom reze) rešpektovať pôvodný tvar zrúteného krídla. Ohraničenie je odčítané z čitateľného otlačku v pôvodnej streche a v zachovalom pôvodnom murive, ktoré definuje šírku hmoty novotvaru. Medzi prístavbou a pôvodnou stavbou je navrhnutý presklený kubus (nad pôvodnými murovanými stenami), ktorý sa nachádza v mieste pôvodného murovaného kubusu pristaveného v minulom storočí. Jeho hmotové zachovanie je z dôvodu potrebného prístupu na 2.NP. Presklenie kubusu však odľahčuje hmotu a nenarúša pôvodný vzhľad pamiatky. Do kubusu bude vložené schodisko, cez ktoré bude prístupné 2. poschodie kancelárií a apartmán na 2. poschodí. Vďaka kubusu je možný prístup do pôvodného otvoru bez nutnosti búrať do pôvodnej steny zachovaného krídla pamiatky. Pôvodné torzo (pôvodné steny), ktoré vystupuje z predmetného krídla bude zachované a nadstavané / pristavané novotvarom. V pôvodných murivách sú navrhnuté otvory v pôvodných pozíciách, no v súčasnom prevedení bez parapetov. Zachované murivá budú omietnuté omietkou ako pri obnovovanom krídle. Materiál novotvaru je uvažovaný z drevených lamiel, ktoré budú prechádzať z opláštenia steny až nad strechu, vďaka čomu sa dosiahne jednoliaty tvar prístavby. Čelo fasády prístavby bude vo veľkej miere presklené z dôvodu otvorenej galérie, ktorá sa nachádza za ňou. Materiálové prevedenie celej novostavby bude z dreva, ktoré poukazuje na súčasné prevedenie novotvaru bez akceptácie pôvodnej materiálovej bázy, nakoľko ku nej neboli v tejto časti pamiatky dochované dokumenty.

 

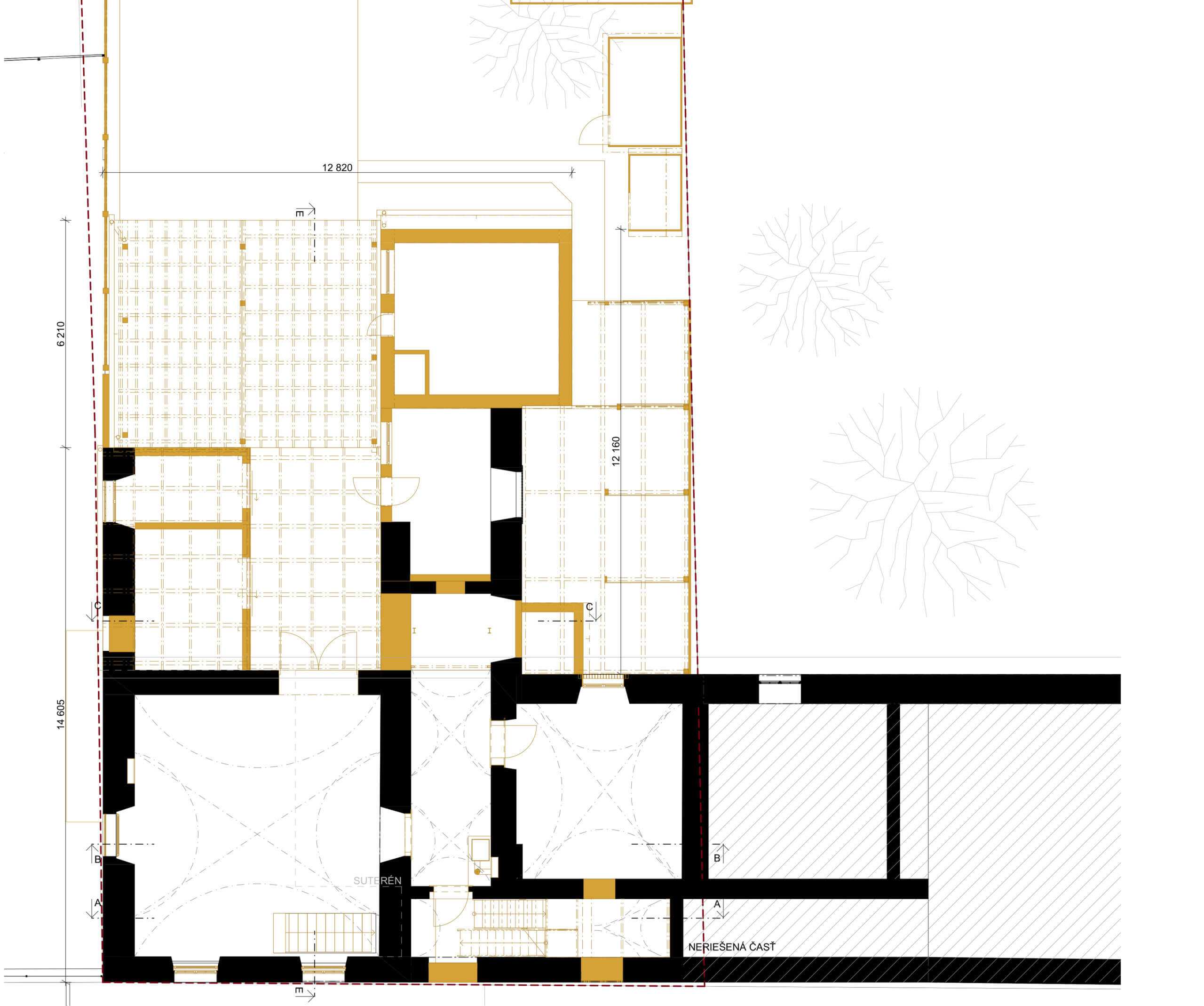
Dispozičné riešenie

Riešený objekt pozostáva z dvoch objemov, ktoré na seba nadväzujú. Pôvodná časť zachovaného krídla, do ktorej je navrhnuté krátkodobé ubytovanie vo forme dvoch dvojizbových apartmánov a prístavba vo forme novotvaru, kde sú navrhnuté kancelárske priestory so zázemím.

Obnova pôvodného krídla

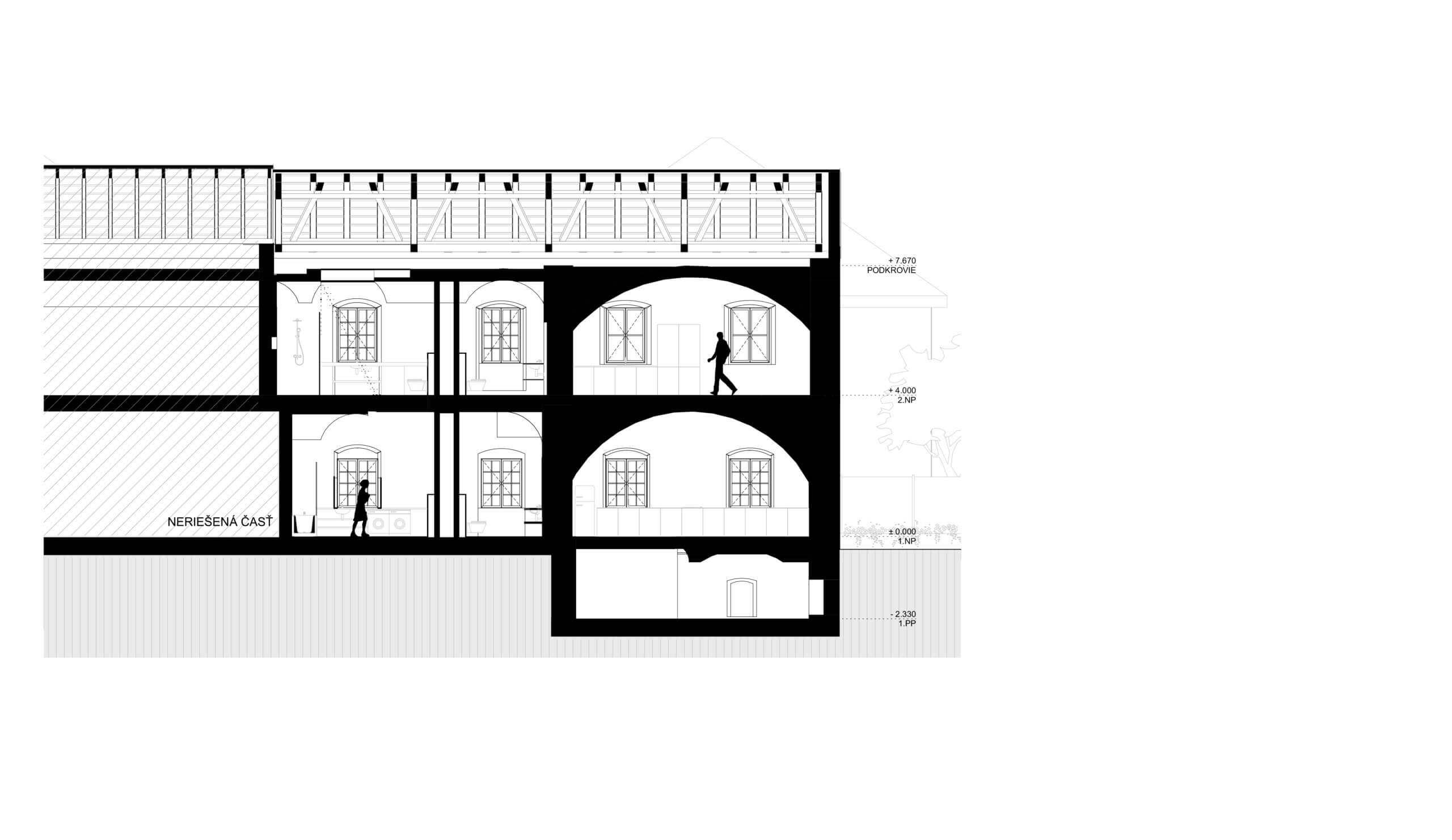
1.PP

Pod pôvodnou časťou krídla sa nachádza menší suterén, ktorý v minulosti zrejme slúžil ako sklad, prípadne vínna pivnička. Do daného priestoru sa dá dostať cez schody, ktoré v minulosti boli zrejme v inom tvare. V súčasnej podobe nemajú podestu. V návrhu sú odstránené a zaslepené. Dôvodom je lepšie využitie priestoru na prvom poschodí. Do súterénu sú navrhnuté dve nové schodiská. Jedno exteriérové, ktoré bude prístupné z pozemku investora a druhé interiérové, ktoré bude prístupné z navrhovanej prístavby. Suterén bude slúžiť ako technická miestnosť pre objekt, alebo ako skladový priestor.

1.NP

Na prvom poschodí je navrhnutý apartmán, ktorý bude prístupný z prístavby na úrovni upraveného terénu. Vstup do apartmánu je riešený cez zádverie umiestnené v prístavbe. Chodba sa nachádza v centrálnej polohe a je z nej prístup do spálne, pohotovostného WC a spoločenskej zóny. V spoločenskej zóne sa bude nachádza obývacia časť s krbom, jedáleň a kuchynská pozdĺžna zostava. Pohotovostné WC obsahuje WC, bidet a umývadlo. Ku spálni prislúcha súkromná kúpeľňa, v ktorej sa bude nachádzať vaňa, WC, umývadlo, sušička a práčka. V rámci búracích prác bude odstránené schodisko smerujúce na druhé poschodie, ktoré tam v minulosti nebolo a bolo kvôli tomuto schodisku nutné odstrániť časť klenby. V návrhu sú odstránené časti murív, v polohách kde boli v minulosti otvory.

2.NP

Na druhé poschodie sa bude môcť dostať cez schodisko navrhnuté v prístavbe. Chodba sa nachádza v centrálnej polohe a bude z nej prístup do spálne, pohotovostného WC a spoločenskej zóny. V spoločenskej zóne sa bude nachádza obývacia časť, jedáleň , pracovný kút s krbom a kuchynská zostava rozdelená na linku pod oknom a ostrovčke. Pohotovostné WC obsahuje WC, bidet, práčku a umývadlo. Ku spálni prislúcha súkromná kúpeľňa, v ktorej sa bude nachádzať sprchový kút, WC, bidet a umývadlo. V rámci búracích prác bude odstránené schodisko smerujúce do podkrovia, ktoré tam v minulosti nebolo a bolo kvôli tomuto schodisku nutné odstrániť časť klenby. V návrhu sú odstránené časti murív, v polohách kde boli v minulosti otvory.

3.NP – KROV

Výstup do krovu je navrhnuté cez padacie dvierka. Podkrovie z dôvodu ťažkého prístupu nebude využívané. Do podkrovia môže byť umiestnená technológia, ktorá môže slúžiť pre obnovovanú časť krídla a prístavbu, do ktorej môžu priamo viesť vodorovné rozvody. Prípadne môže toto poschodie slúžiť pre skladové účely.

Prístavba v novotvare

1.PP

V prístavbe sa neuvažuje so suterénom. Do pôvodného suterénu pod obnovovanou budovou bude viesť schodisko zo schodiskového priestoru prístavby.

1.NP

V mieste pôvodných prístavieb je navrhnutý novotvar novej prístavby. Ten rešpektuje pôvodné nosné murivá a pristavuje sa s novou nosnou konštrukciou. V mieste styku prístavby a pôvodného objektu je navrhnuté schodisko, ktoré bude slúžiť na prístup do apartmánu na 2.NP pôvodného objektu a aj ako prístup na 2. poschodie do priestorov kancelárie. Daný styk je vyriešený preskleným kubusom, ktorý sa nachádza v mieste pôvodného murovaného kubusu. Od súkromného pozemku investora je navrhnutý vedľajší vstup do súkromnej kancelárie, ktorú bude v jeho užívaní. Z predmetnej kancelárie je možný prístup do kuchynky, samostatného WC s predsienkou a serverovne, z ktorej bude ďalej prístup do miestnosti pre upratovačku umiestnenej pod schodmi. V rámci kancelárie je navrhnutá menšie printová zóna. Zo súkromnej kancelárie bude prístup do hlavného kancelárskeho priestor „open space“. Do tejto kancelárie je hlavý vstup orientovaný z nádvoria cez zádverie. Zo zádveria je možný aj priamy vstup do menšej zasadacej miestnosti, cez ktorú je ďalej možný prístup do kuchynky. Kuchynka ako aj zasadacie miestnosť je prechodná a prístupná aj priamo z exteriéru, kde pred týmito priestormi sa bude nachádzať spoločná terasa. Kuchynka bude prístupná aj zo zádveria, kde sa bude nachádzať schodisko z dôvodu lepšieho prístupu z kancelárie na druhom poschodí. V spoločnej kancelárii „open space“  bude priestor členený na viacero zón: 1. zóna pre návštevy, v ktorej sa bude nachádzať pohovka s konferenčným stolíkom, 2. zóna na prácu, kde sú navrhnuté kancelárske stoly so sedením, 3. printová zóna, kde je umiestnená tlačiareň, úložné priestory, archív. Nad touto zónou sa bude nachádzať schodisko, cez ktoré bude prístupné druhý „open space“ na druhom poschodí. K danej kancelárii prislúcha unisex WC s predsieňou.

2.NP

Druhé poschodie v prístavbe je prístupné cez dve schodiská. Prvé umiestnené do skleného kubusu a druhé umiestnené priamo do kancelárskeho priestoru. V rámci skleneného kubusu sú umiestnené 3 schodiskové stupne, ktoré vyrovnávajú výšku medzi podlažím v obnovovanej budove a podlažím v prístavbe. Zo schodiska sa do hlavnej kancelárie na tomto poschodí prechádza cez voľnočasový priestor, v ktorom môže byť umiestnený ping – pongový stôl, pohovka, alebo priestor na hranie video hier. K voľnočasovému priestoru prislúcha WC s predsieňou, slúžiace pre dané podlažie. Cez presklenú stenu voľnočasového priestoru bude prístup do kancelárie „open space“. V rámci tohto podlažia sú navrhnuté dve akusticky izolované miestnosti s možnosťou online hovorov. Obi dve odizolované bunky sú navrhnuté na inej nižšej výškovej úrovni ako je celé podlažie, z dôvodu potrebnej nižšej svetlej výšky pod strešnou rovinou. V čelnej pozícii „open space“ sa nachádza galérie cez dve podlažia. V rohu prístavby pri v dotyku s pôvodnou fasádou je vyčlenený priestor, v ktorom sa bude nachádzať tepelné čerpadlo zakomponované do strešnej roviny.