Prístavba k rodinnému domu, Starobystrická, Zálesie

Autori: Patrícia Hamalová, Ema Ruhigová, Roman Ruhig

Dátum: september 2025

Miesto: Zálesie, Starobystrická ul.

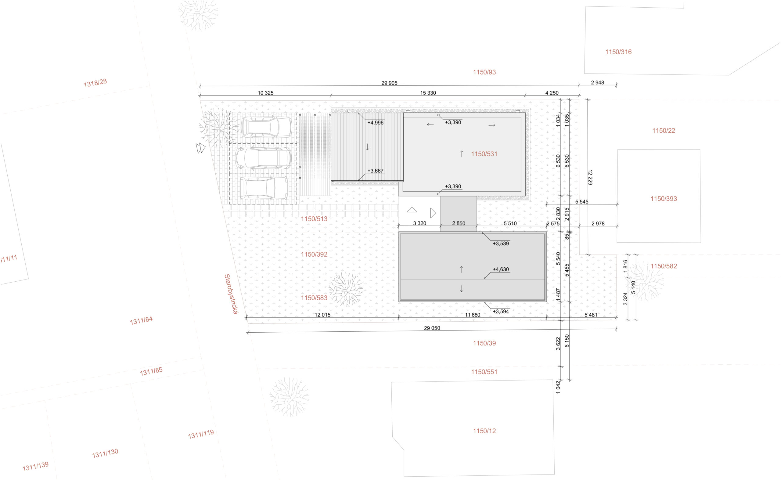
Urbanistické začlenenie stavby do územia

Prístavba sa bude nachádzať v existujúcej zástavbe rodinných domov v obci Zálesie. Prístavba bude dostavaná k existujúcemu rodinnému domu na Starobystrickej ulici. Rodinný dom (ako aj jeho nová prístavba) je napojený na hlavnú komunikáciu z prednej strany objektu. Pozemok je priechodný, nakoľko sa za rodinným domom nachádza menší rodinný dom, v ktorom býva rodinný príslušník investorov. Prístavba je navrhnutá tak, aby bol k tomuto domu naďalej prístup buď okolo prístavby, alebo cez novonavrhovaný medzipriestor medzi existujúcim domu a prístavbou. Pôvodný objekt, ku ktorému bude pristavaná prístavba má z prednej strany pultovú strechu. V zadnej časti domu má dom plochú strechu. V susedstve prevládajú sedlové strechy. Aj z toho titulu bola prístavba navrhnutá v kontexte existujúceho objektu a okolitých budov formou sedlovej strechy s rôznym stupňom strešných rovín.

 

Architektonické a výtvarné riešenie

Hmotový koncept prístavby bol primárne navrhnutý v kontexte s okolitou zástavbou. Nadväzuje na tvar najbližších šikmých striech vďaka priesečníkom, ktoré sa pomyselne pretínajú medzi objektami – existujúcim RD, ku ktorému bude prístavba pristavená a susedným rodinným domom na vedľajšom pozemku. Strecha je navrhnutá ako sedlová s rôznym sklonom strešných rovín, ktorých sklon závisí od daného kontextu vedľajšieho objektu. Hrebeň prístavby sa nachádza vo výške, ktorá je v priemernej výške medzi hrebeňom pultovej strechy pristavovaného objektu a rímsou susedného objektu. Objekt je navrhnutý so zaatikovým žľabom. Vďaka tomu je hlavná hmota prístavby v minimalistickom prevedení. Medzi prístavbou so sedlovou strechou a pôvodnou hmotou rodinného domu je navrhnutý medzipriestor s plochou strechou, ktorá nadväzuje na plochú strechu existujúcej časti domu. Výška medzipriestoru je nižšia ako rímsa navrhovanej prístavby a nižšia ako horná hrana atiky pôvodného rodinného domu. Vďaka tomu je hmota zádveria menej výrazná, čo bolo aj zámerom. Priečelie medzipriestoru je navrhnuté ako celopresklené s oceľoou nosnou konštrukciou. Fasáda prístavby so šikmou strechou je navrhnutá z dekoračnej omietky v bielom prevedení, vďaka čomu sa prístavba odlíši od pôvodnej substancie.

 

Dispozičné riešenie

Skutkový stav

Pôvodný rodinný dom je v súčastnosti využívaný 5 obyvateľmi. Nachádza sa v ňom priestory ako: zádverie spoločenská zóna (spojená obývacia miestnosť, kuchyňa a jedáleň), kúpeľňa, technická miestnosť, spálňa a detská izba. Vzhľadom na rozrastajúca sa rodinu je potrebné zväčšiť kapacitu domu, čo je predmetom daného projektu. V pôvodnom stave sa uvažuje s odstránením niektorých priečok za účelom zväčšenia nástupného priestoru a rozšírenia jedálne.

Nový stav

V navrhovanom stave je v pôvodnom dome rozdelená súčasná detská izba na dva menšie priestory. Existujúci hlavný vstup sa nahradí oknom a nový vstup bude riešený cez existujúce okno, ktoré v súčasnosti presvetľuje spálňu. Medzi prístavbou a pôvodným rodinným domom je navrhnutý presklený medzipriestor, ktorý by mal slúžiť ako zádverie pre obe hmoty. Vďaka tomu je možná eliminácia zádveria v pôvodnom objekte a zväčšenie spoločenskej zóny. V prístavbe sa bude nachádzať súkromná zóna pozostávajúca zo spálne pre rodičov, detská izba, kúpeľňa, technická miestnosť a chodba. Zo zádveria je prístupná chodba, kde môže byť umiestnený šatník. Chodba je ústredným priestorom, z ktorého sa dostávame do ostatných priestorov. V centre prístavby sa nachádza technická miestnosť a kúpeľňa, ktoré sú prístupné z chodby. Kúpeľňa obsahuje dvoj-umývadlo, bidet, toaletu a sprchovým kút s vymurovaným sedením. Navrhnutá spálňa je orientovaná na severozápadnú svetovú stranu. V spálni je navrhnutá manželská posteľ, „beauty“ stolík, sedenie v okne a úložný priestor. Podobne je koncipovaná aj detská izba, ktorá je navrhnutá smerom na juhozápad. V detskej izbe je navrhnutá posteľ, ktorá by mohla byť aj poschodová, pracovný stôl, sedenie v okne a úložný priestor.