ORANGE fun zóna

Autori: Ema Ruhigová, Roman Ruhig

Dátum: január 2025

Miesto: Trenčín, letisko

Návrh festivalovej ORANGE FUN zóny vznikol na základe súťaže návrhov pre vytvorenie konceptu, ktorý by mohol byť využitý na rôznych letných festivaloch ako je napríklad POHODA a GRAPE.

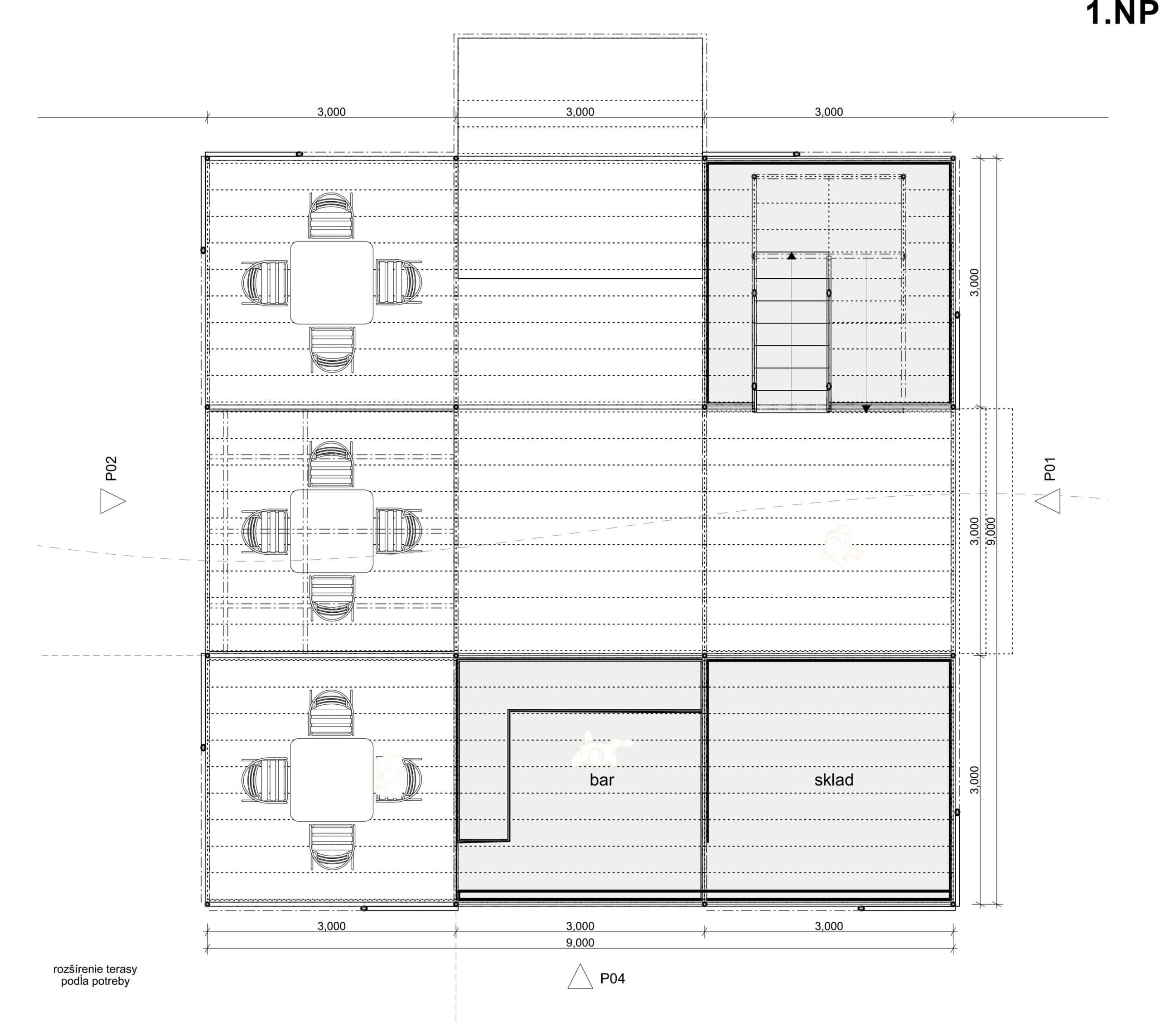
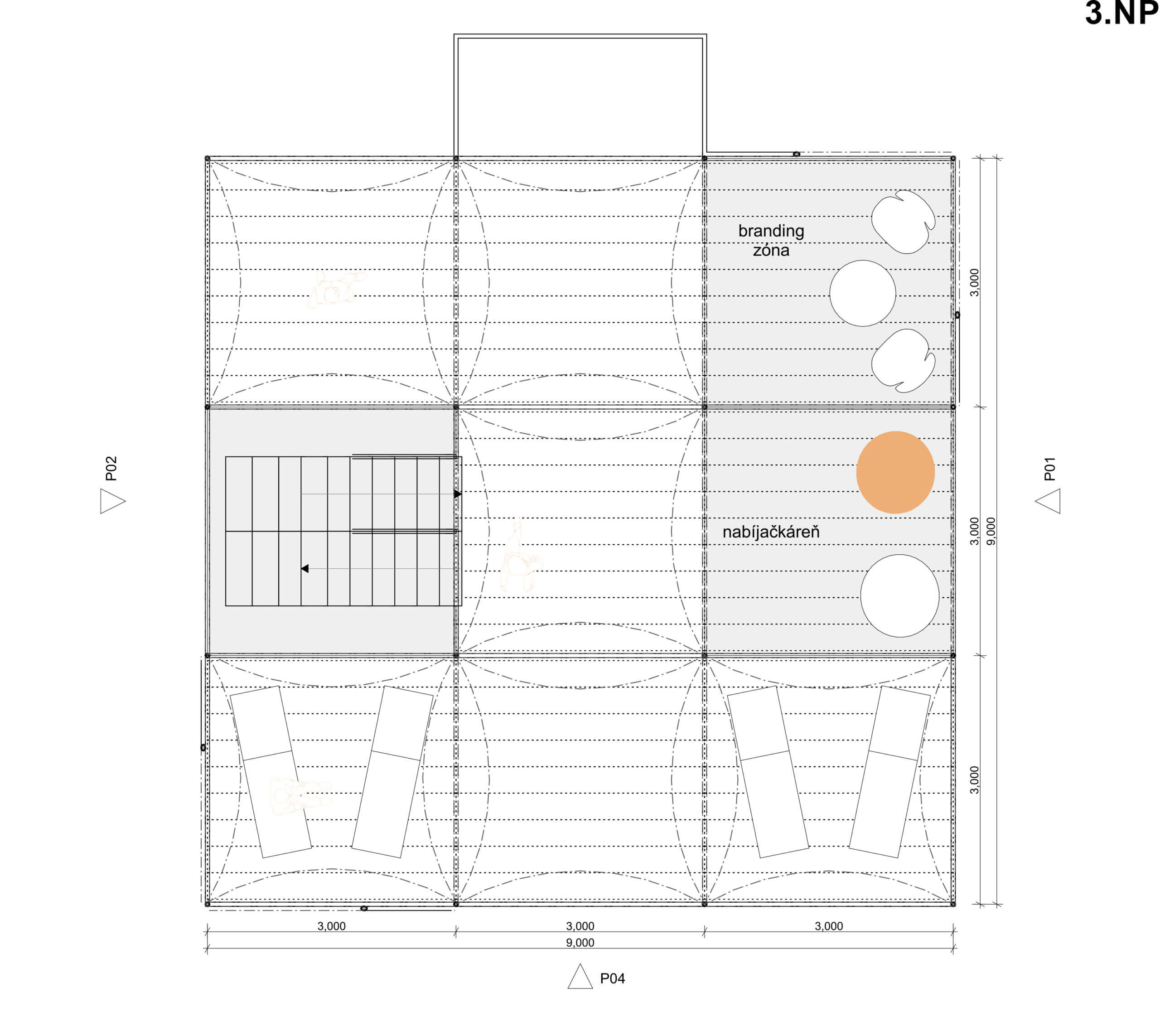
Hlavným zadaným motívom bola kocka, ktorá sa nachádza aj v samotnom logu spoločnosti ORANGE v priestorovom zobrazení.  Kocka sa preto stáva ústredným motívom celej FUN zóny. V rámci zóny sú ďalej rozmiestnené ďalšie kocky, ktoré majú rôzne funkcie ako napr.: interaktívna kocka, kocka s „fotoshootingom“, priestory na konzultáciu, oddychové priestory s nabíjačkami a pod. Centrálna kocka je navrhnutá z lešenia a napínaných plachiet, ktoré môžu v noci celoplošne svietiť. Rozmer modulu je 3x3x m. Podlahy sú uvažované z perforovaných kovových dosiek a vrchná terasa je prestrešená z napínaných plachiet vo výraznom oranžovom (korporátnom) prevedení. V čele kocky sa v strede nachádza jediná vysunutá kocka (nástupný priestor), na ktorej je nápis ORANGE. Objekt je navrhnutý ako trojpodlažný, kde sa na prvom poschodí nachádza bar so zázemím a terasou. Na druhom a treťom poschodí sa nachádza pobytová terasa s „nabíjačkárňou“ a s „branding“ zónou. Najvyššie poschodie je navrhnuté ako vyhliadka s relax zónou a lehátkami.